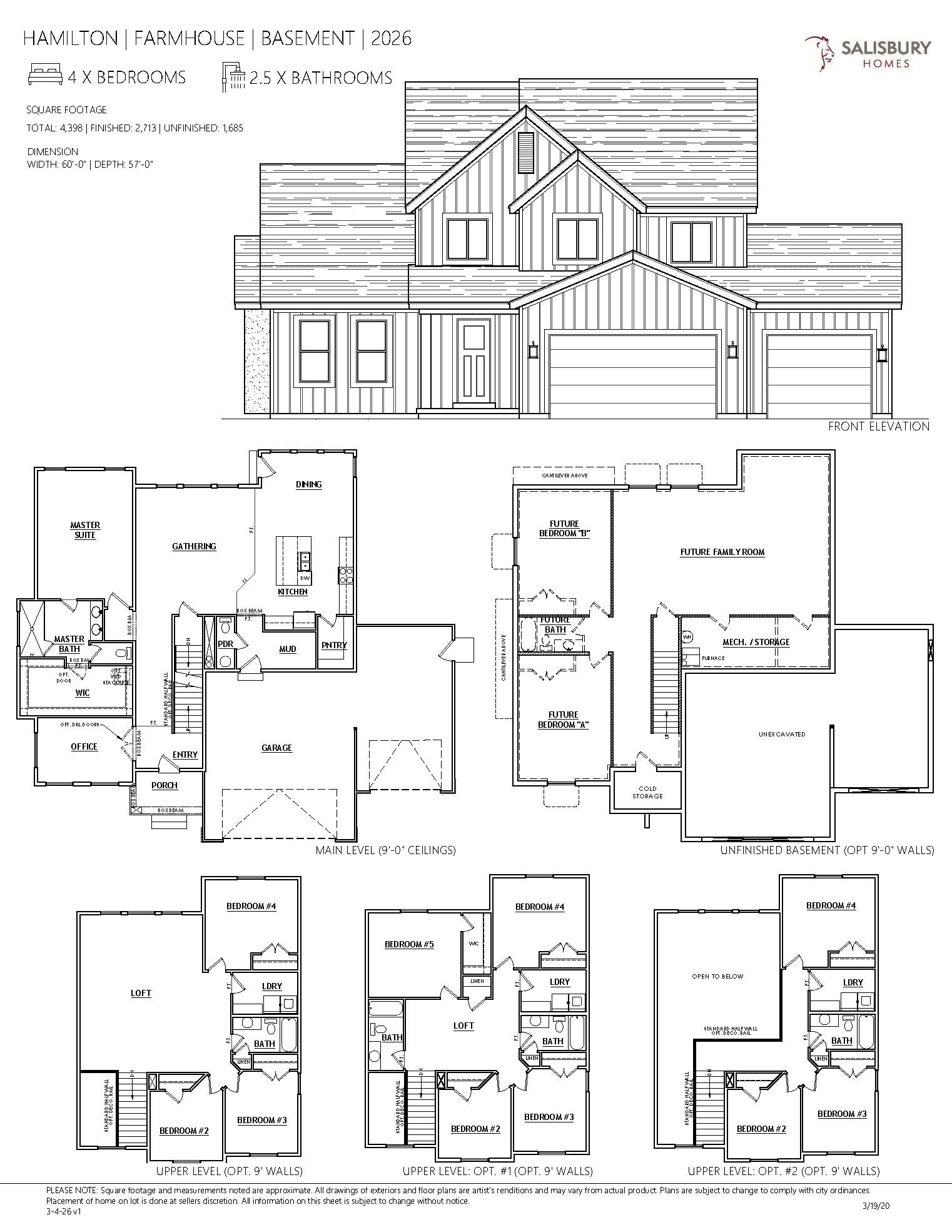
Hamilton

Welcome to 
Salisbury Homes!

Looking for the perfect home?